物件詳細
No.10【豊住地区】竜台の一戸建て住宅【契約済】
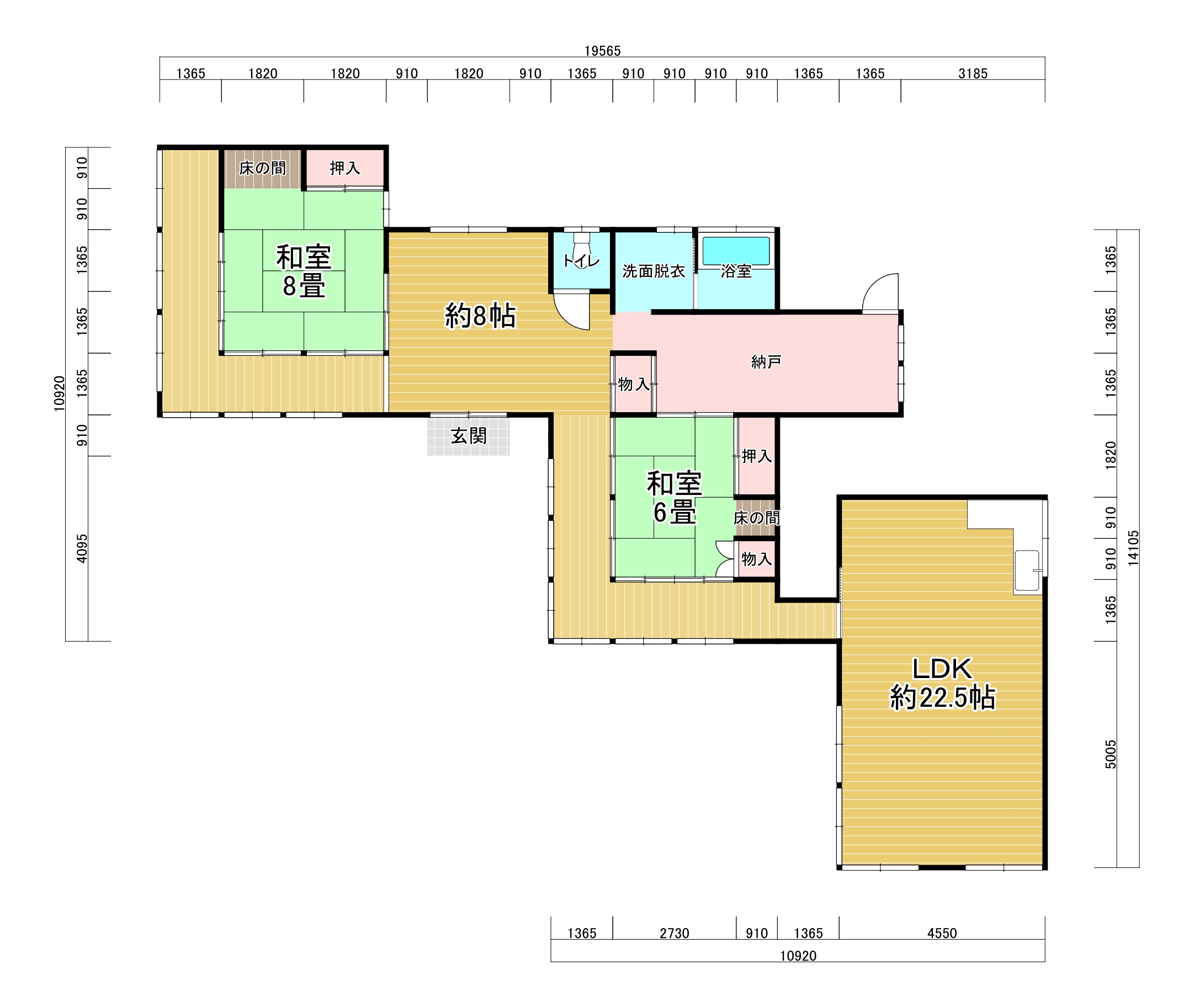
間取り
契約形態等
| 契約形態 | 一戸建て(売買) | 登録地区 | 豊住地区 |
|---|---|---|---|
| カテゴリ | 空き家 |   |   |
| 売買価格 | 1,000万円 | 賃貸価格 | − |
| 備考 | |||
物件の概要
| 所在地 | 千葉県成田市竜台
|
||
|---|---|---|---|
| 築年月 | 1965年7月 | 構造 | 木造 |
| 共益費 | なし | ||
| 延床面積 | 86.09u | 敷地面積 | 4458.79u |
| 間取り | 2LDK | 補修 | 不要 |
設備状況
| ガス | プロパンガス | 台所 | 有 |
|---|---|---|---|
| 水道 | 井戸水 | 下水道 | 浄化槽 |
| 風呂 | ガス | トイレ | 水洗(洋式) |
| テレビ回線 | 有 | インターネット | 無 |
| オール電化 | 無 | 庭 | 有 |
| 物置 | 有 | 駐車場 | 有 |
主要施設
| 小学校区 | 豊住小学校まで1.9km | 中学校区 | 成田中学校まで9.9km(スクールバス有) |
|---|---|---|---|
| 最寄駅 | JR滑河駅まで6.7km | 最寄バス停 | |
| 成田市役所 | 11km | 病院 | 根本医院まで6.9km |
その他特記事項
| ※ 現況有姿を基本とし、設備等が故障した際は買主負担で修繕や購入をしてください。ただし、残置物については引き渡しまでに所有者負担にて処分いたします。 ※ 物件所在地は市街化調整区域のため、用途変更や再建築される場合は都市計画課にて要件の確認をお願いします。併せて建築住宅課へ前面道路についてセットバックの確認をお願いいたします。 ※ 所在地地図は近隣を表示しており、物件の所在地ではありません。 ※ 区費等は竜台区自治会にご確認ください。 その他ご不明な点につきましては下記お問い合わせ先からお問合せください。 |
お問い合わせ
土木部建築住宅課
TEL:0476-20-1564
FAX:0476-24-4354
Eメール:kenchiku@city.narita.chiba.jp






