物件詳細
No.177【根郷地区】通勤・通学に便利な立地。多世代家族も住みやすい戸建て住宅
|
||
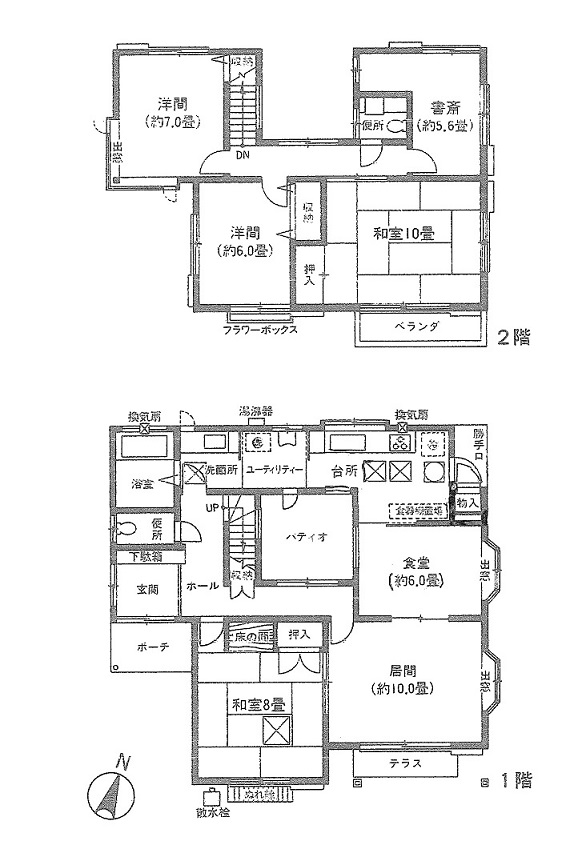
間取り
契約形態等
| 契約形態 | 一戸建て(売買) | 登録地区 | 根郷地区 |
|---|---|---|---|
| カテゴリ | 空き家 |   |   |
| 売買価格 | 1,780万円 | 賃貸価格 | − |
| 備考 | |||
物件の概要
| 所在地 | 佐倉市山王2丁目 | ||
|---|---|---|---|
| 築年月 | 1989年3月 | 構造 | 木造瓦葺2階建て |
| 共益費 | なし | ||
| 延床面積 | 142.11u | 敷地面積 | 201.58u |
| 間取り | 4LDK+書斎+中庭+作業室 | 補修 | 不要 |
設備状況
| ガス | 都市ガス | 台所 | 独立型 |
|---|---|---|---|
| 水道 | 公共水道 | 下水道 | 公共下水道 |
| 風呂 | ガス | トイレ | 水洗(1階、2階) |
| テレビ回線 | あり | インターネット | ー |
| オール電化 | 無 | 庭 | あり |
| 物置 | あり | 駐車場 | 有(1台まで可) |
主要施設
| 小学校区 | 山王小学校 0.8q | 中学校区 | 根郷中学校 0.1q |
|---|---|---|---|
| 最寄駅 | JR総武本線物井駅 1.4q | 最寄バス停 | 0.2q |
| 佐倉市役所 | 根郷出張所 1.8q | 病院 | 佐倉中央病院 5.4q |
その他特記事項
| 2024(令和6)年12月以降、空き家となっています。 山王地区地区計画区域(住宅地区1)の物件につき土地利用に制限があります。 |
お問い合わせ
都市部 住宅課
TEL:043-484-6168
FAX:043-485-0108
Eメール:jutaku@city.sakura.lg.jp





