物件詳細
No.174【臼井地区】稲荷台4丁目のファミリー向け戸建賃貸住宅
|
||
| 外観(南側から) |
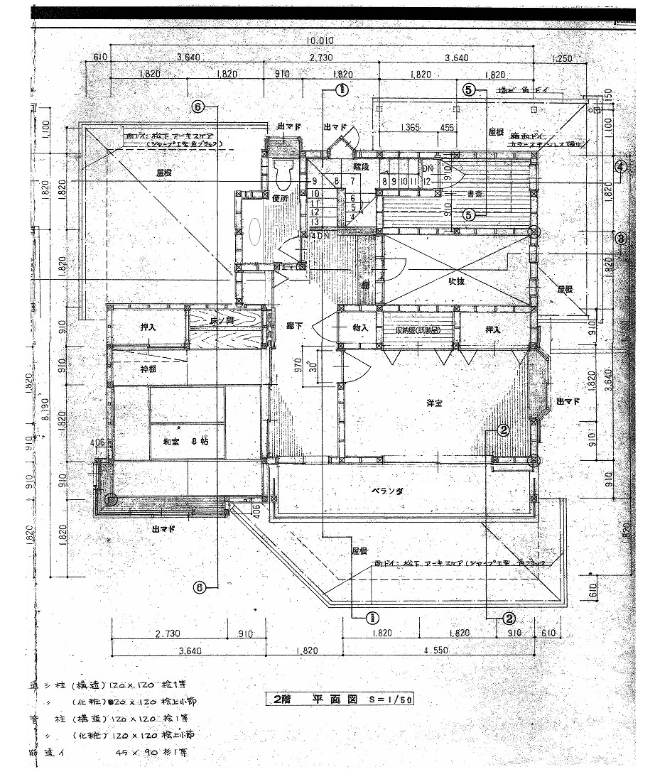
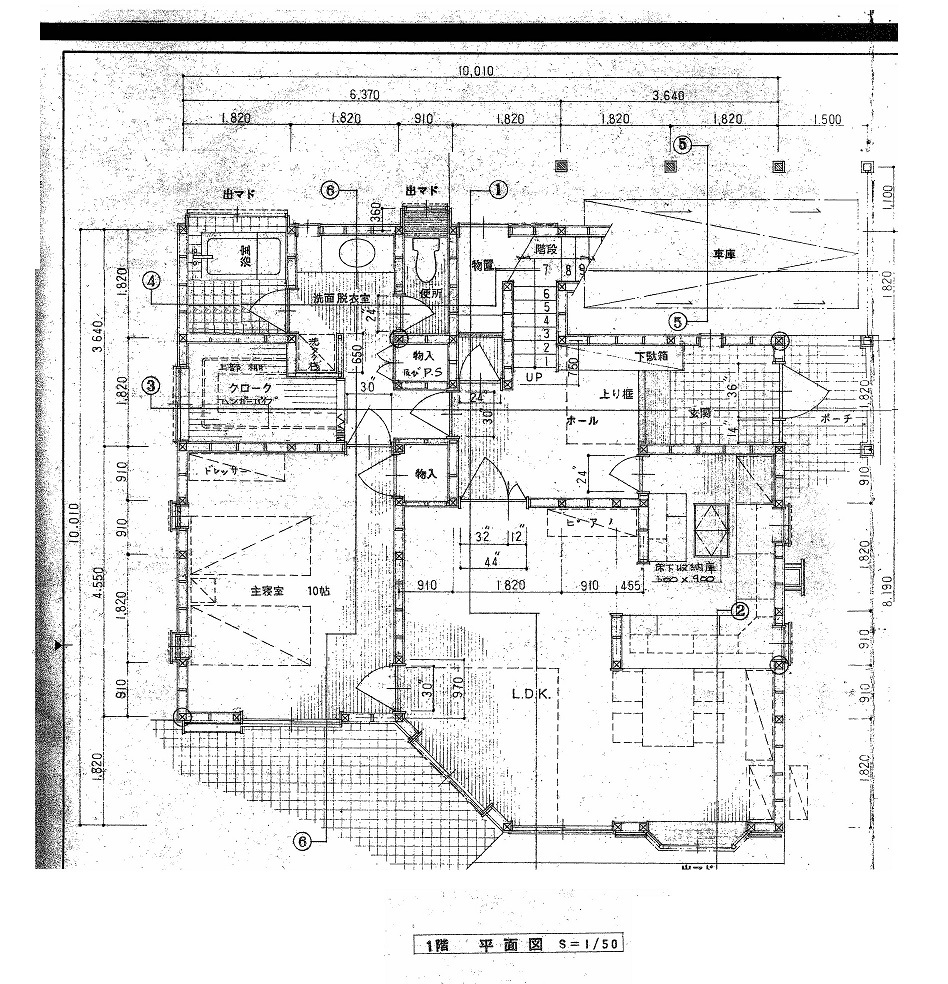
間取り
契約形態等
| 契約形態 | 一戸建て(賃貸) | 登録地区 | 臼井地区 |
|---|---|---|---|
| カテゴリ | 空き家 |   |   |
| 売買価格 | − | 賃貸価格 | 120,000円/月 |
| 備考 | 契約は2年更新となります | ||
物件の概要
| 所在地 | 佐倉市稲荷台4丁目 | ||
|---|---|---|---|
| 築年月 | 1992年11月 | 構造 | 木造スレート葺き2階建て |
| 敷金 | 1ヶ月分 | 礼金 | なし |
| 共益費 | なし | ||
| 延床面積 | 162.92u | 敷地面積 | 199.21u |
| 間取り | 3LDK+書斎(3畳)+クローク(2.5畳) | 補修 | 不要 |
設備状況
| ガス | 都市ガス | 台所 | LDK |
|---|---|---|---|
| 水道 | 上水道 | 下水道 | 下水道 |
| 風呂 | ガス | トイレ | 水洗 |
| テレビ回線 | 引き込み済み | インターネット | ー |
| オール電化 | 無 | 庭 | あり |
| 物置 | 1庫 | 駐車場 | 有(1台まで可) |
主要施設
| 小学校区 | 王子台小学校 0.8q | 中学校区 | 臼井西中学校 1.4q |
|---|---|---|---|
| 最寄駅 | 京成臼井駅 0.9q | 最寄バス停 | |
| 佐倉市役所 | 臼井・千代田出張所 1.5q | 病院 | 東邦大学医療センター佐倉病院 2.3q |
その他特記事項
| ・2026年3月、賃貸に向けたリフォーム工事が完了しました。 ・敷金1か月。礼金・更新料不要。 ・入居前のハウスクリーニングは、家主負担。 ・メンテナンス(電球交換を含む、設備の管理)は借主負担。 ・年1回年末頃に実施の植栽剪定は家主が負担。 ・20年ほど前にシロアリ駆除、7年前に外装塗装あり。 ・近隣トラブル防止のため日本語でのコミュニケーションが可能な方。 |
お問い合わせ
都市部 住宅課
TEL:043-484-6168
FAX:043-485-0108
Eメール:jutaku@city.sakura.lg.jp





