物件詳細
No.167【弥富地区】内田の平屋住宅(家庭菜園・就農希望者向け)
|
||
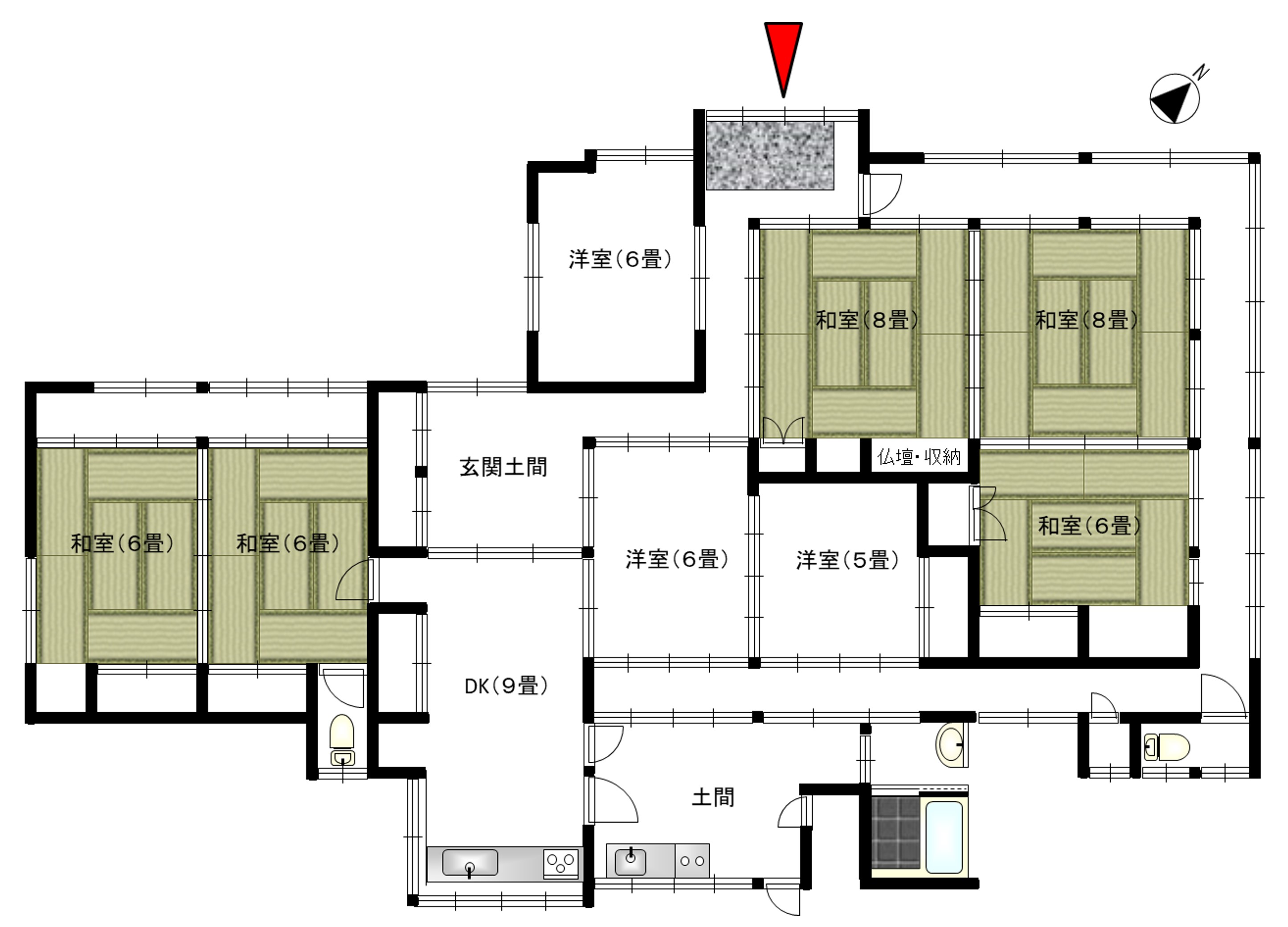
間取り
契約形態等
| 契約形態 | 一戸建て(売買) | 登録地区 | 弥富地区 |
|---|---|---|---|
| カテゴリ | 空き家 |   |   |
| 売買価格 | 1,200万円 | 賃貸価格 | − |
| 備考 | |||
物件の概要
| 所在地 | 佐倉市内田 | ||
|---|---|---|---|
| 築年月 | 1969年5月 | 構造 | 木造 |
| 共益費 | なし | ||
| 延床面積 | 186u | 敷地面積 | 1431.39u |
| 間取り | 8DK | 補修 | 多少必要(入居者負担) |
設備状況
| ガス | プロパン | 台所 | 有 |
|---|---|---|---|
| 水道 | 井戸 | 下水道 | 浄化槽 |
| 風呂 | 有 | トイレ | 洋式 |
| テレビ回線 | 有 | インターネット | - |
| オール電化 | 無 | 庭 | - |
| 物置 | 複数有 | 駐車場 | 有(3台まで可) |
主要施設
| 小学校区 | 弥富小学校(約1.4km) | 中学校区 | 南部中学校(約4.5km) |
|---|---|---|---|
| 最寄駅 | JR物井駅(約7.7km) | 最寄バス停 | |
| 佐倉市役所 | 弥富派出所(約1.4km) | 病院 | 佐倉厚生園病院(約9.4km) |
| スーパー | 東武ストア(約6.5km) | 高速道路 | 佐倉IC(約6.0km) |
その他特記事項
| ・住宅内の家財道具等の残置物は所有者が処分いたします。 ・納屋等の農機具等の残置物の扱いについては購入希望者の方と相談して決定します。 ・敷地内には母屋のほか、納屋など3棟の建物、ビニールハウスが1か所あります。 ・敷地に接する道路は建築基準法第42条第2項の道路であるため、道路の中心から2mのセットバックが必要となります。 ・当物件は、住宅用途以外の利用はできません。(農家カフェ、物販、会社は行えません) ・建築確認がないため、ローン等の融資は受けずらい物件です。(現金購入) ※販売価格を値下げしました。1600万円→1500万円→1200万円 2025(R7)年12月23日 |
お問い合わせ
都市部 住宅課
TEL:043-484-6168
FAX:043-485-0108
Eメール:jutaku@city.sakura.lg.jp





